



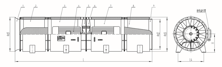
SDF(c)型隧道施工专用对旋轴流通风机




版权所有:山西尊龙凯时风机有限公司 备案号:晋ICP备16001392号-3
联系人:仝红江 电话:0359-2480001/13835937772
地址:山西省运城市运城经济技术开发区汤里西路1600号 全国服务热线:400-168-6789
邮箱:sxyafj@163.com
山西尊龙凯时风机有限公司主要从事矿用风机、隧道风机、煤矿通风机、非煤矿通风机
低噪音风机、隧道射流风机,欢迎前来咨询!